Официальный сайт Level Group (Левел Групп)

Лайт индастриалLevel Group7071-4-4Официальный сайт Level Group (Левел Групп)1-4-4Официальный сайт Level Group (Левел Групп) – квартиры в новостройках Москвы и Подмосковья по ценам от застройщика. Строительство и продажа жилой и коммерческой недвижимости.
руб.133033181Property
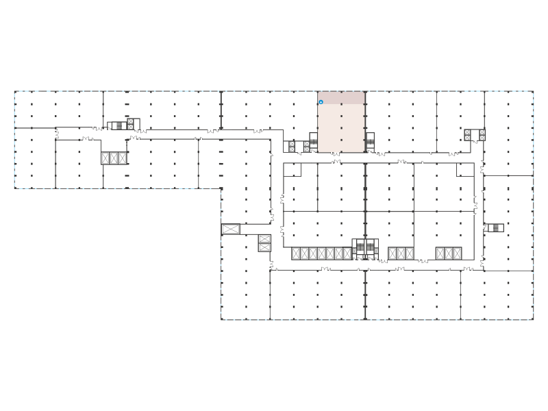
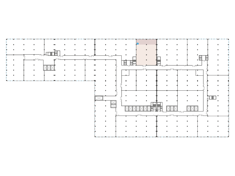
Помещение, 707 м2
Level work Свободы
Планировка
На этаже
На генплане
Визуализация
Визуализация
Визуализация
Визуализация
Описание помещения

Level work Свободы — продуманное пространство для размещения современного производства. Помещение спроектировано с учётом всех требований к разным видам производств, вплоть до тяжёлой промышленности. Лот имеет свободную планировку и может быть адаптирован под индивидуальные технологические процессы. При необходимости возможно объединение нескольких помещений для увеличения площади или создания индивидуальной конфигурации.

В помещении предусмотрены все необходимые коммуникации, включая мокрые точки, спринклеры и приточно-вытяжную вентиляцию. Общая электрическая мощность — 22 МВт. Также обеспечены естественная инсоляция и проветривание.

Преимущества для владельца:

  • Круглосуточный доступ и техническая поддержка управляющей компании;
  • Авизация и бронирование доков для минимизации простоя транспорта и водителей;
  • Централизованное управление погрузкой-разгрузкой.

Преимущества для инвестора:

  • 30% — средний рост стоимости актива с момента старта продаж до ввода в эксплуатацию;
  • До 14% — доходность при покупке на старте и продаже через 3 года после ввода; 
  • До 13% — годовая арендная доходность;
  • Подбор арендаторов и управление договорами аренды;
  • Возможность покупки в рассрочку и возмещения НДС.

Level work Свободы — продуманное пространство для размещения современного производства.

Помещение спроектировано с учётом всех требований к разным видам производств, вплоть до тяжёлой промышленности. Лот имеет свободную планировку и может быть адаптирован под индивидуальные технологические процессы. При необходимости возможно объединение нескольких помещений для увеличения площади или создания индивидуальной конфигурации.

В помещении предусмотрены все необходимые коммуникации, включая мокрые точки, спринклеры и приточно-вытяжную вентиляцию. Общая электрическая мощность — 22 МВт. Также обеспечены естественная инсоляция и проветривание.

Преимущества для владельца:

  • Круглосуточный доступ и техническая поддержка управляющей компании;
  • Авизация и бронирование доков для минимизации простоя транспорта и водителей;
  • Централизованное управление погрузкой-разгрузкой.

Преимущества для инвестора:

  • 30% — средний рост стоимости актива с момента старта продаж до ввода в эксплуатацию;
  • До 14% — доходность при покупке на старте и продаже через 3 года после ввода; 
  • До 13% — годовая арендная доходность;
  • Подбор арендаторов и управление договорами аренды;
  • Возможность покупки в рассрочку и возмещения НДС.
Стоимость при 100% оплате, ипотеке и рассрочке
133 033 181 руб.С учетом - 10%Скидка 10%
147 814 646 руб.
Стоимость при 100% оплате,
ипотеке и рассрочке
Помещение, 707 м2
Общие параметры
Тип сделки
Продажа
Расположение
м. Сходненская
от 12 мин
Тип помещения
Лайт индастриал
Корпус
Г1
Этаж
4 из 8
Срок сдачи
II кв. 2028 г.
Условный номер
1-4-4
Цена за м²
188 165 руб.
Отделка
Без отделки
Высота потолков
4.50 м
Технические характеристики
Зона погрузки / разгрузки
Нет
Электрическая мощность, кВт
84840
Вывеска
Нет
Нагрузка на пол, кг/м²
2000
Шаг колонн
6х12
Стоимость при 100% оплате, ипотеке и рассрочке
133 033 181 руб.С учетом - 10%Скидка 10%
147 814 646 руб.
Стоимость при 100% оплате,
ипотеке и рассрочке
Описание помещения

Level work Свободы — продуманное пространство для размещения современного производства. Помещение спроектировано с учётом всех требований к разным видам производств, вплоть до тяжёлой промышленности. Лот имеет свободную планировку и может быть адаптирован под индивидуальные технологические процессы. При необходимости возможно объединение нескольких помещений для увеличения площади или создания индивидуальной конфигурации.

В помещении предусмотрены все необходимые коммуникации, включая мокрые точки, спринклеры и приточно-вытяжную вентиляцию. Общая электрическая мощность — 22 МВт. Также обеспечены естественная инсоляция и проветривание.

Преимущества для владельца:

  • Круглосуточный доступ и техническая поддержка управляющей компании;
  • Авизация и бронирование доков для минимизации простоя транспорта и водителей;
  • Централизованное управление погрузкой-разгрузкой.

Преимущества для инвестора:

  • 30% — средний рост стоимости актива с момента старта продаж до ввода в эксплуатацию;
  • До 14% — доходность при покупке на старте и продаже через 3 года после ввода; 
  • До 13% — годовая арендная доходность;
  • Подбор арендаторов и управление договорами аренды;
  • Возможность покупки в рассрочку и возмещения НДС.

Level work Свободы — продуманное пространство для размещения современного производства.

Помещение спроектировано с учётом всех требований к разным видам производств, вплоть до тяжёлой промышленности. Лот имеет свободную планировку и может быть адаптирован под индивидуальные технологические процессы. При необходимости возможно объединение нескольких помещений для увеличения площади или создания индивидуальной конфигурации.

В помещении предусмотрены все необходимые коммуникации, включая мокрые точки, спринклеры и приточно-вытяжную вентиляцию. Общая электрическая мощность — 22 МВт. Также обеспечены естественная инсоляция и проветривание.

Преимущества для владельца:

  • Круглосуточный доступ и техническая поддержка управляющей компании;
  • Авизация и бронирование доков для минимизации простоя транспорта и водителей;
  • Централизованное управление погрузкой-разгрузкой.

Преимущества для инвестора:

  • 30% — средний рост стоимости актива с момента старта продаж до ввода в эксплуатацию;
  • До 14% — доходность при покупке на старте и продаже через 3 года после ввода; 
  • До 13% — годовая арендная доходность;
  • Подбор арендаторов и управление договорами аренды;
  • Возможность покупки в рассрочку и возмещения НДС.
Транспортная доступность
Транспортная доступность
Удобное расположение в пределах МКАД
12 мин. пешком до метро «Сходненская»
300+ парковочных мест для грузового и легкового транспорта
20 мин на авто до ТТК
Передовая инженерия
Электроснабжение 120 Вт/м² GLA с возможностью увеличения
Кратность воздухообмена – 1 с возможностью увеличения
Промышленная канализация
Спринклеры и дымоудаление
Бесшовная логистика
28 доковых систем, 30 электропогрузчиков
Зона маневрирования для фур (40 м)
19 промышленных лифтов грузоподъёмностью 5-10 т, 12 пассажирских лифтов
Логистический коридор 6 м на каждом этаже
Вариативность лотов
Шаг колонн 6х12
Нагрузка на перекрытия 1 - 5 т/м²
Высота потолка 4,5 - 8 м
Размер производственных боксов от 500 до 17 тыс. м²
Мокрые точки в каждом лоте
Развитая инфраструктура
Гибкие офисы, переговорные и конференц залы
Шоурумы
Ресепшн
Столовая
Профессиональная УК
Обеспечение безопасности
Техподдержка 24/7
Фит. аут под ключ (отделка и инженерные системы)
Сервисы для инвесторов: подбор арендаторов / управление договорами аренды
Контроль графика въезда-выезда транспорта (круглосуточный доступ)
01/02
Изображение истории

Объекты
рядом

Передовая
инженерия

Бесшовная
логистика

Вариативность
лотов

Развитая
инфраструктура

Профессиональная УК

Скачать презентацию
Галерея проекта
Галерея проекта
Галерея проекта
Офис продаж
Офис продаж
Офис продаж
Скачать схему проезда
Скачать схему проезда
19 помещений
19 помещений
от 40.5 млн руб.
от 40.5 млн руб.
Запись на встречу
Запись на встречу
Персональный менеджер подберет выгодное предложение
Персональный менеджер подберет выгодное предложение

Рассчитайте ипотеку

Запись на встречу
Персональный менеджер подберет выгодное предложение
Характеристики
О проекте
Общие параметры
Тип сделки
Продажа
Расположение
м. Сходненская
от 12 мин
Тип помещения
Лайт индастриал
Корпус
Г1
Этаж
4 из 8
Срок сдачи
II кв. 2028 г.
Условный номер
1-4-4
Цена за м²
188 165 руб.
Отделка
Без отделки
Высота потолков
4.50 м
Технические характеристики
Зона погрузки / разгрузки
Нет
Электрическая мощность, кВт
84840
Вывеска
Нет
Нагрузка на пол, кг/м²
2000
Шаг колонн
6х12
Описание помещения

Level work Свободы — продуманное пространство для размещения современного производства. Помещение спроектировано с учётом всех требований к разным видам производств, вплоть до тяжёлой промышленности. Лот имеет свободную планировку и может быть адаптирован под индивидуальные технологические процессы. При необходимости возможно объединение нескольких помещений для увеличения площади или создания индивидуальной конфигурации.

В помещении предусмотрены все необходимые коммуникации, включая мокрые точки, спринклеры и приточно-вытяжную вентиляцию. Общая электрическая мощность — 22 МВт. Также обеспечены естественная инсоляция и проветривание.

Преимущества для владельца:

  • Круглосуточный доступ и техническая поддержка управляющей компании;
  • Авизация и бронирование доков для минимизации простоя транспорта и водителей;
  • Централизованное управление погрузкой-разгрузкой.

Преимущества для инвестора:

  • 30% — средний рост стоимости актива с момента старта продаж до ввода в эксплуатацию;
  • До 14% — доходность при покупке на старте и продаже через 3 года после ввода; 
  • До 13% — годовая арендная доходность;
  • Подбор арендаторов и управление договорами аренды;
  • Возможность покупки в рассрочку и возмещения НДС.

Level work Свободы — продуманное пространство для размещения современного производства.

Помещение спроектировано с учётом всех требований к разным видам производств, вплоть до тяжёлой промышленности. Лот имеет свободную планировку и может быть адаптирован под индивидуальные технологические процессы. При необходимости возможно объединение нескольких помещений для увеличения площади или создания индивидуальной конфигурации.

В помещении предусмотрены все необходимые коммуникации, включая мокрые точки, спринклеры и приточно-вытяжную вентиляцию. Общая электрическая мощность — 22 МВт. Также обеспечены естественная инсоляция и проветривание.

Преимущества для владельца:

  • Круглосуточный доступ и техническая поддержка управляющей компании;
  • Авизация и бронирование доков для минимизации простоя транспорта и водителей;
  • Централизованное управление погрузкой-разгрузкой.

Преимущества для инвестора:

  • 30% — средний рост стоимости актива с момента старта продаж до ввода в эксплуатацию;
  • До 14% — доходность при покупке на старте и продаже через 3 года после ввода; 
  • До 13% — годовая арендная доходность;
  • Подбор арендаторов и управление договорами аренды;
  • Возможность покупки в рассрочку и возмещения НДС.

Рассчитайте ипотеку

Вам может
быть интересно: